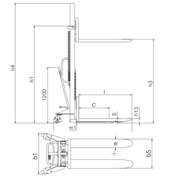
– dvigovanje bremen od 1T do 1,6m
– namenjeno za dvig tovora na EU palete
– visokokakovosten jekleni drog in robustna jeklena konstrukcija
– ročno in nožno dvigovanje
– zaščitna kovinska rešetka
– kolesa s parkirno zavoro
– Oznaka CE, standard EN 3691-5








