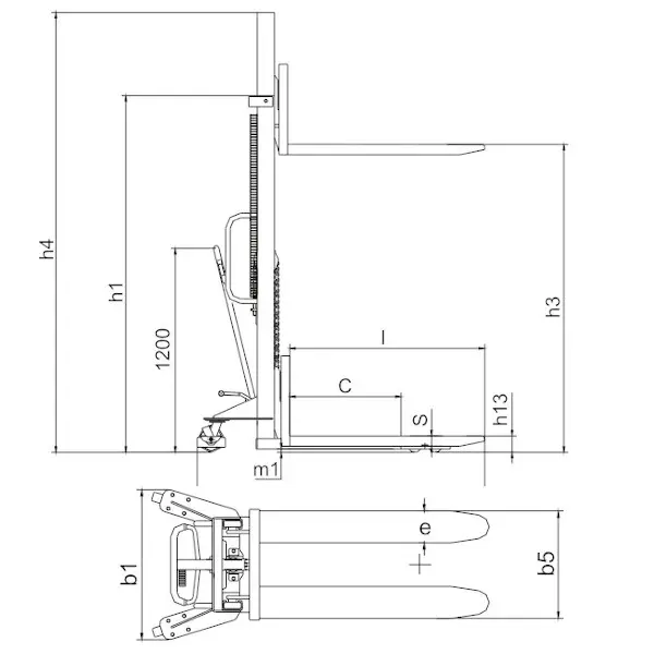
– nastavljiva širina vilic od 295/310 mm do 930 mm
– osi vilic omogočajo enostavno nastavitev širine
– visokokakovosten jeklen steber in trdna jeklena konstrukcija zagotavljata togost in vzdržljivost
– visoko zmogljiva hidravlična črpalka
– ročno in nožno dvigovanje
– zaščitna kovinska rešetka
– kolesa s parkirno zavoro
– Oznaka CE, standard EN 3691-5
Drugi modeli so na voljo po naročilu.







