– dvižne mize za industrijsko uporabo in optimizacijo proizvodnih procesov
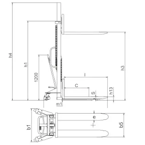
– nosilnost mize 1T, hod delovne plošče 785-1060mm
– dolžina delovne plošče od 1300 do 2000 mm, širina od 820 do 1700 mm
– upravljanje s tipkami 24V
– napajanje 380V 50Hz
– varnostni ventil proti preobremenitvi
– zaščita pred nenadzorovanim spuščanjem z robnimi kontakti
– regulacijski ventil za zaustavitev spuščanja mize v primeru poka cevi
– enostavna montaža z očesnimi vijaki
– CE oznaka, standard EN 1570-1












