– adapter za čelni viličar namenjen za rokovanje s sodi
– omogoča transport, dvigovanje, zlaganje in vrtenje sodov
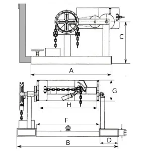
– ročna veriga za vrtenje bobna z voznikovega sedeža s prestavnim razmerjem 30:1
– robusten reduktor za obračanje sodov
– primeren za sode premera 570-600mm do 210l / 365kg










